Loading…
3701 Woodlawn Road
Map
Photos
Property Location
3701 Woodlawn Road
Rocky Mount, NC 27804
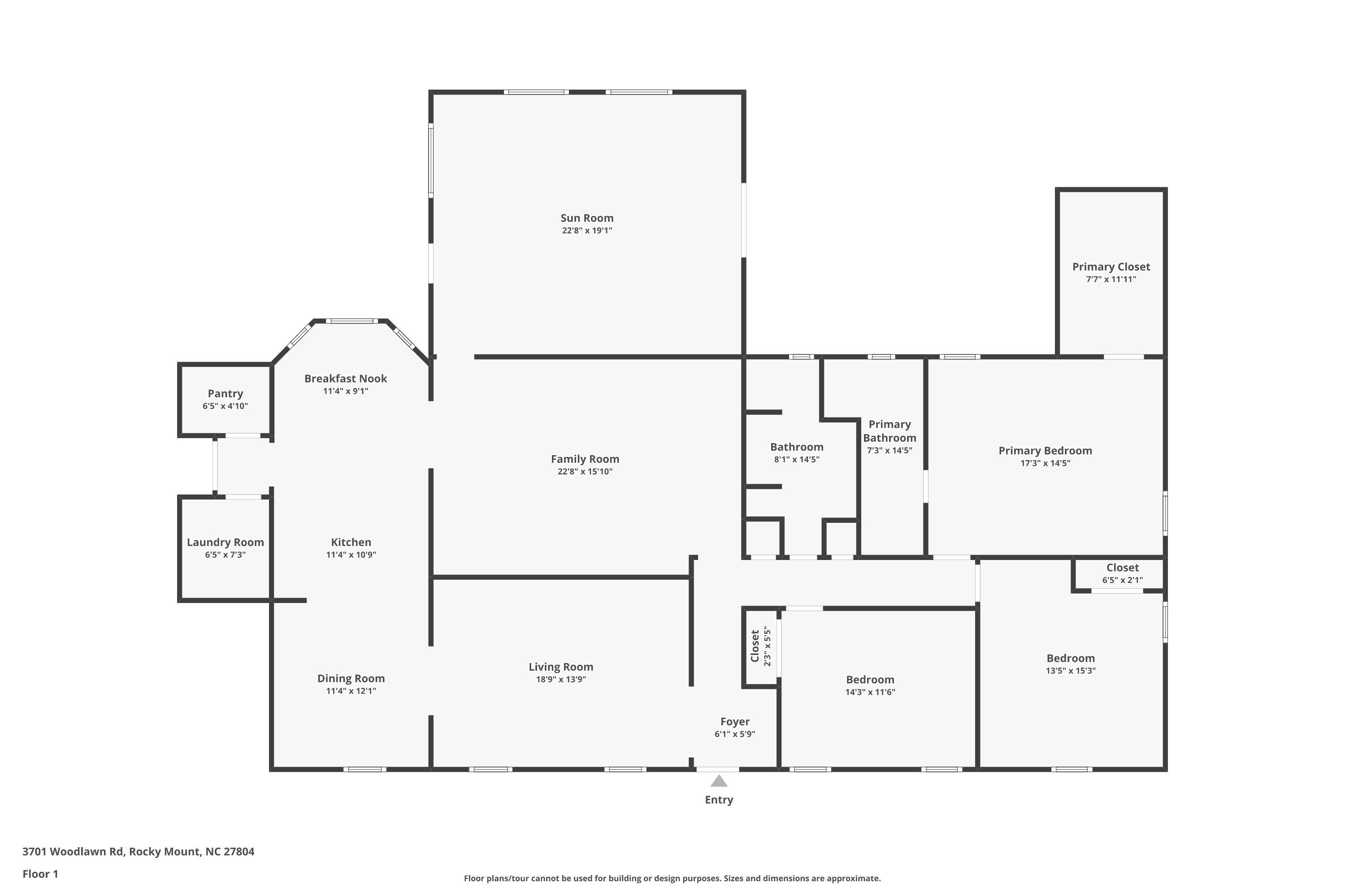
2,936
SqFt
3
Beds
2
Baths