Loading…
3004 Northeast 15th Avenue, Portland, OR 97212
Toggle navigation
3004 Northeast 15th Avenue
(current)
Map
Photos
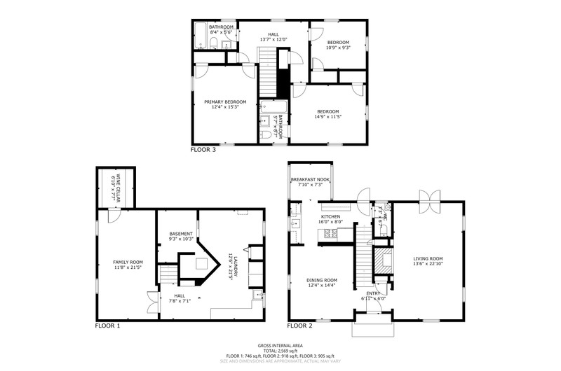
2,637
Sqft
3
Bed
2.5
Bath
PHOTOS
2025 © 503 Real Estate Photography. ALL Rights Reserved.