Loading…
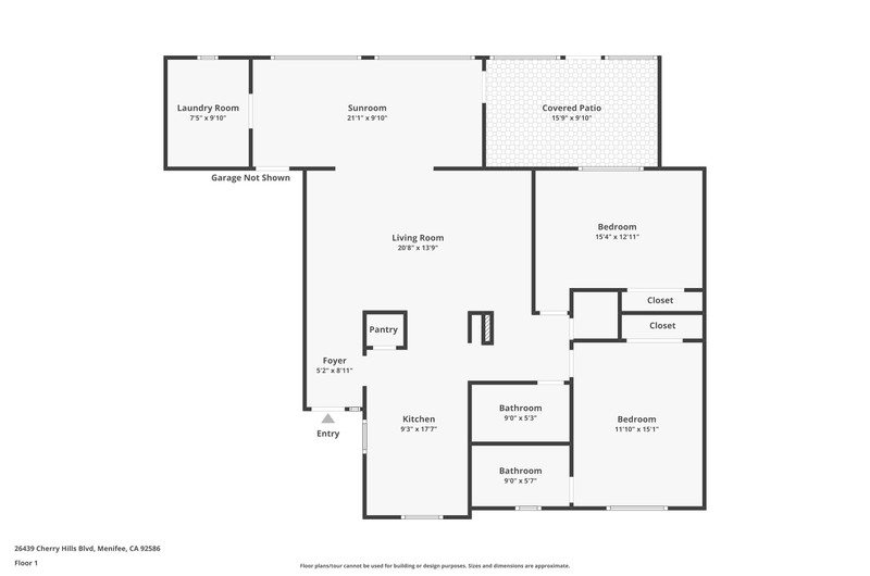
26439 Cherry Hills Boulevard, Menifee, CA 92586
Toggle navigation
26439 Cherry Hills Boulevard
(current)
Map
Photos
1,066
Sqft
2
Bed
2
Bath
PHOTOS
2026 © Media Dreams LLC. ALL Rights Reserved.