Loading…
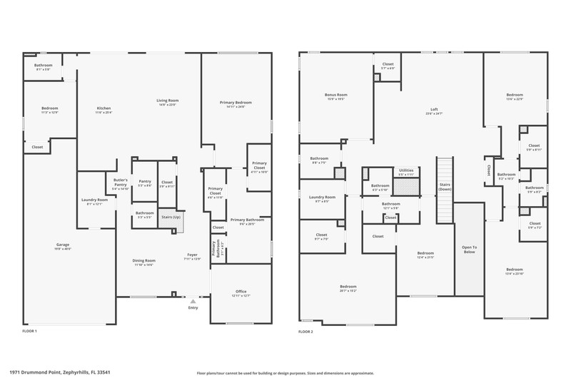
1971 Drummond Point, Zephyrhills, FL 33541
Toggle navigation
1971 Drummond Point
(current)
Map
Photos
5,452
Sqft
6
Bed
5
Bath
PHOTOS
2026 © Aryelle Monique Photography. ALL Rights Reserved.