Loading…
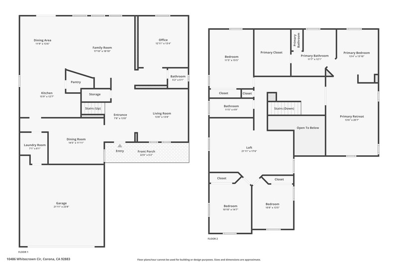
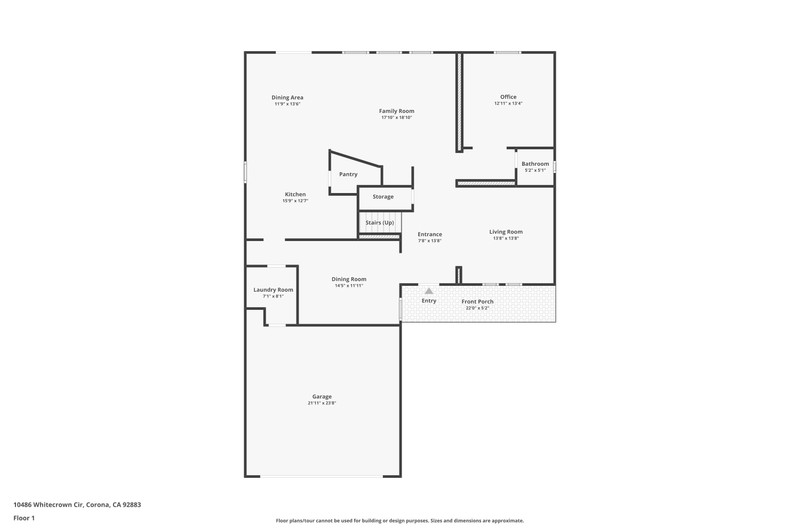
10486 Whitecrown Circle, Corona, CA 92883
Toggle navigation
10486 Whitecrown Circle
(current)
Map
Photos
3,512
Sqft
5
Bed
2.5
Bath
PHOTOS
2026 © Media Dreams LLC. ALL Rights Reserved.