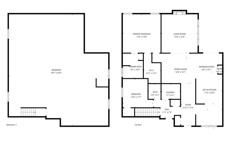
10290 Honeysuckle Lane, Broadview Heights, OH 44147

1,728

Sqft

2

Bed

1

Bath

PHOTOS