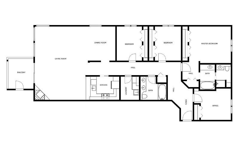
323 3rd Ave South Unit 203
Map
Photos
Property Location
323 3rd Ave South Unit 203
Edmonds, WA 98020