Loading…
Lakeridge Road
Info
Photos
Additional Media
Location
Contact
15600 Lakeridge Road
Lake Elsinore, CA 92530
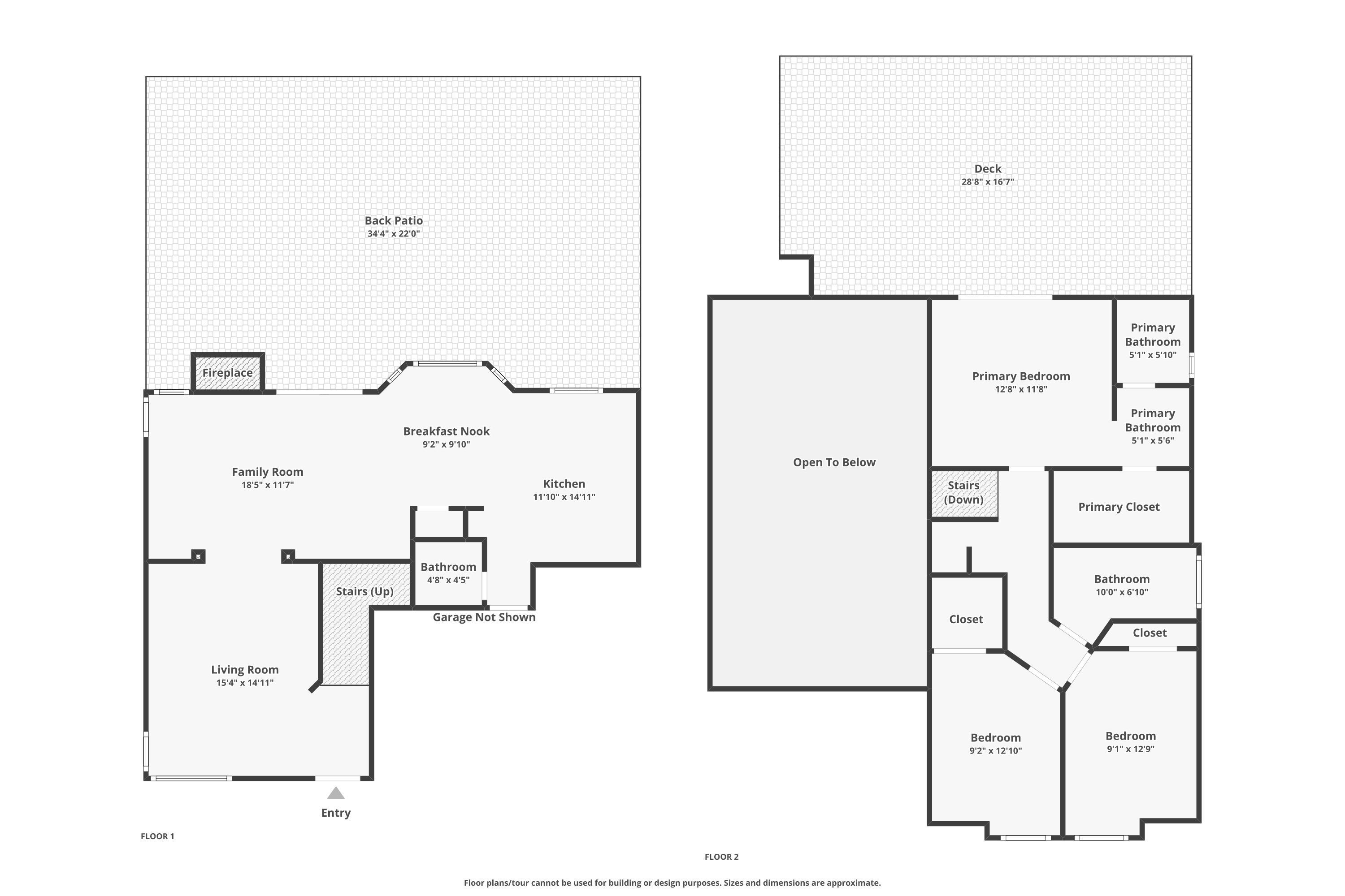
1,384
sqft
3
beds
2
baths
Photos.
Additional Media.
360
Location.
Contact
Jessica Small
License #: 01361340
(951) 757-2112
Jessica@jlsrealty.com
Send a Message